
Zalando Headquarters
The idea began in 2008 in a shared flat in Berlin. Ten years on, Zalando had grown to become Europe’s leading online fashion platform. Despite a strong and cohesive on-line brand, in reality its workforce was scattered across Berlin. What was needed was a unique, unifying building. One that reflected the spirit of the start-up culture and that would have the ability to remain flexible and serve all of the company’s functions. A building that would, at the same time, leave its mark on the city. HENN gave this vision a form.
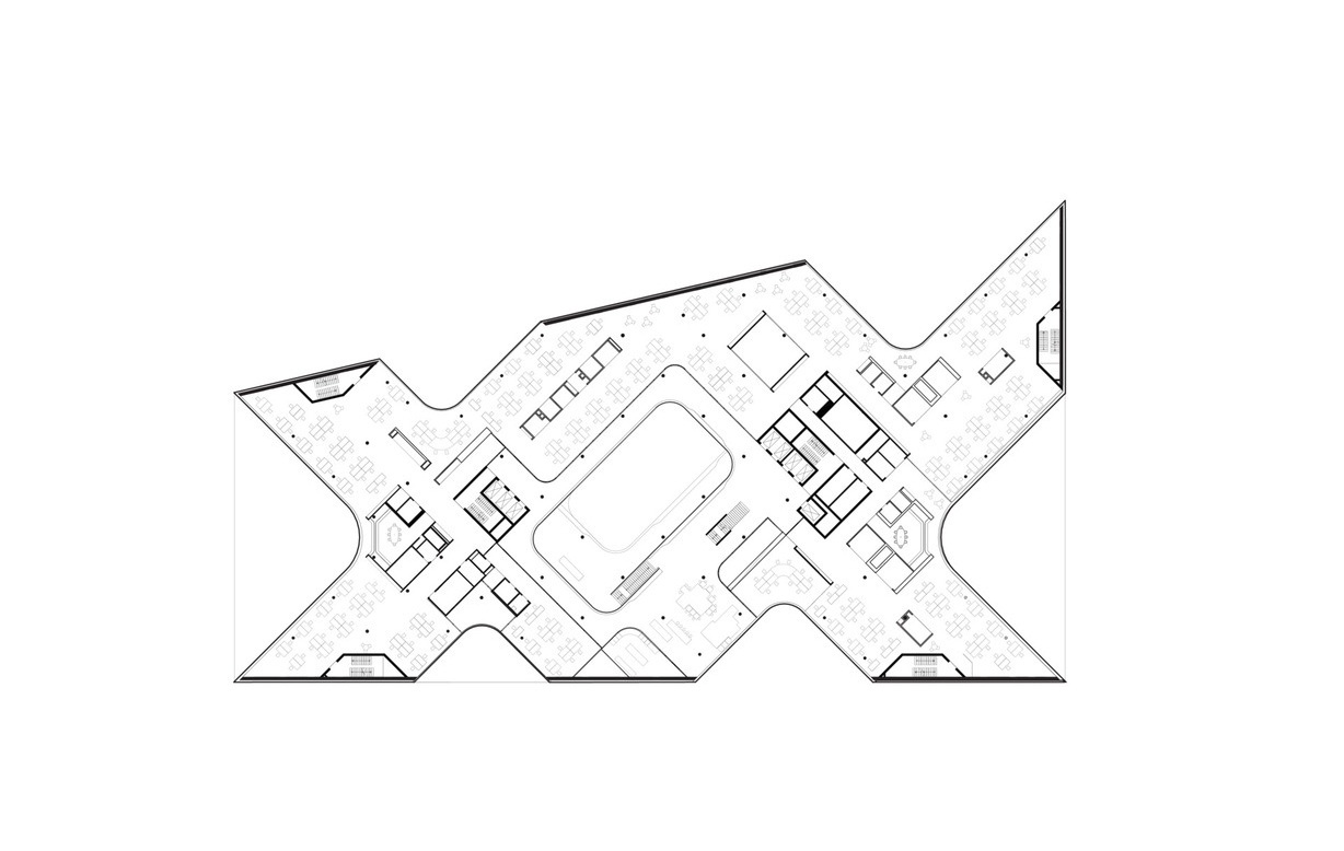
The double X
The new Zalando Headquarters consists of an ensemble of two buildings that form the heart of the company’s new campus in Berlin-Friedrichshain, neighbouring the “Mercedes-Benz-Arena” and the East Side Gallery. Rather than forming a closed block, the design of seven-storey volumes, accommodating a total of 43,000 m² of office space, creates a striking expression of the company’s identity which assumes an open and transparent presence in the city.
The wrap-around glass façade which embraces the carved architectural volume like brackets, is a fundamental part of the design. It is this reinterpretation of the traditional Berlin block, created by rotating the building layout diagonally to the urban-development plan, that enabled a design solution to be found with which the building unfolds towards the city.

In this way, the interior courtyards shift to the perimeter of the site, enabling a fluid transition between the offices and the public spaces, in turn affording larger views both into and out of the building by virtue of the transparent and translucent facades.
Vertical marketplace

The central atrium, designed in a palette of warm wood, cool concrete and neon tubes, is a visual feast of dynamic lines, vistas and material contrasts.


The atrium in combination with the adjacent auditorium, creates a spatial continuum that extends over numerous floors, thus enhancing the user’s flexibility. Conference and training zones, next to a café and the staff restaurant, additionally dock onto the overall complex.
The choice of the analogy between the digital network society and a bustling market place is no coincidence. From kitchens and sports areas to child care facilities, the building’s occupants can find everything that makes living and working both easy and pleasant.
The “squatters”
The unique spatial configurations of the interior, achieved by the interlocking double high spaces around the atrium establish an unexpected dynamic atmosphere. Irregularly dispersed, this generates either multi-storey open spaces or more intimate zones for seclusion that meet the set criteria, namely the intermixing of the work zones so as to amplify an agile, communicative atmosphere.
Even during the competition process, it became immediately apparent that the architecture had to create a stage for a versatile “occupation” and convertible use of the building. It is not the office or the individual workspaces that are the spatially defining criteria; rather it is the route by which they are reached that is paramount.


In the so-called “living rooms”, social interaction is encouraged through varying spaces for exchange such as co-working seating landscapes, kitchenettes with wooden tables and bar stools, a balustrade with space for laptops and a view out over the whole campus. This exchange, and the connectivity between these communal areas on the individual floors, is additionally magnified through the open stairway.



Sustainable office worlds provide flexible communication areas that promote creativity and interchange. The spatial organisation of the offices on the upper floors is deliberately organized with both concentration and interaction zones in order to accommodate the shifting needs of the staff and to meet the differentiated uses. The considerable depth of the building is broken up through the skilful layering of the program, whereby the various functions – from the lobby to the roof terrace – group themselves around the atrium in the form of a double-helix.
Key Info
Collaboration Partners
hhpberlin, Müller-BBM, KINZO, Bartenbach LichtLabor, Atelier Loidl, BuroHappold Engineering, Werner Sobek, PMI